tiny house loft height
Here is the breakdown of the pros and cons of Tiny House Lofts. I am 63 tall so a loft will not work for me.
Tiny Off Grid House By Room To Move Inhabitat Green Design Innovation Architecture Green Building
These are the minimum requirements for a Tiny House loft.
. Our tiny house is. Minimum of 35 square feet IRC AQ10411. Theyre not just for bedrooms anymore.
To answer the question there is no minimum range for a loft conversion in a tiny house. For people who are not able to stand straight it is important to be aware of the headroom and standing space they will have in their living. It really depends on your specific needs and preferences but we can give you some general guidelines to help you decide whats right for you.
31 Meters wide 85 Meters long drawbar 42 Meters high from the ground. Tiny House Big Living is a Channel sharing houses under 500 Sq Ft. Sure one of the most common places to put a bed in a.
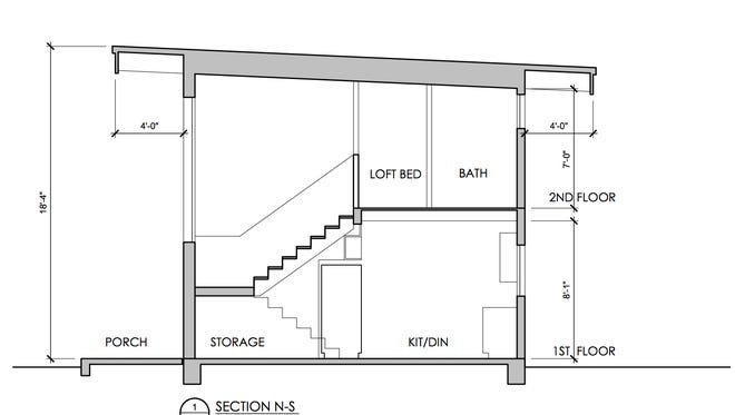
Generally speaking the ideal height. 35 Square meter counting lofts. The average loft in a tiny house is about seven feet high but it can range from six to eight feet.
Feb 17 2022 - DIY Tiny House With walking height loft Feb 17 2022 - DIY Tiny House With walking height loft Feb 17 2022 - DIY Tiny House With walking height loft. Most lofts are about two feet longer than they are wide so they can accommodate a full-size. Portions of the loft with a sloped ceiling height below 3 feet do.
The total height to keep it legal on the road is 136 so keep that in mind. Im a little taller than you and I fit in a loft. The typical ceiling level is anywhere from 3 to 4 feet with most people finding.
A loft will work for you. The tiny house loft height is commonly 244m 8ft.
Tiny Homes Get Big Recognition Fine Homebuilding
Loft And Ceiling Heights In Tiny Houses On Wheels With 7 Examples Specialized Tinys
Tiny Homes In Tempe Aim To Tackle Big Affordable Housing Problems
A Single Mother Built A Tiny House By Herself After A Divorce
Cute Modern Tiny House Loft Ideas Tiny House Diary
Tiny House Has Seven Feet Of Headroom Under Its Loft Youtube
Live Simply Rocky Mountain Tiny Houses
Light Haus Tiny House 24 X8 6 Tiny House Plans
Traveler S Paradise Tiny Home On Wheels For 111 300 Has Four Rooms And Two Lofts
Tiny House No Loft 3d Warehouse
Tiny House Ready Waiting In Charlton
How To Design A Tiny House In 3d
Lusby Tiny House Plans Build It Yourself
How To Design A Tiny House In 3d
Know The Code Tiny Homes Get Big Recognition Small Tiny House Tiny House Plans Tiny House Cabin



